Provisionsfrei für den Mieter! Auch perfekt als 2er WG! in der Schützenhofgasse!
Exposé
Provisionsfrei für den Mieter!
Willkommen in Ihrer neuen Wohnung in der Schützenhofgasse!
Auch perfekt als 2er WG geeignet.

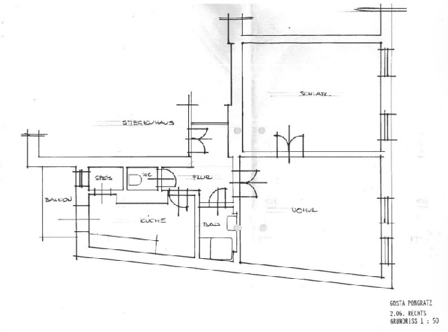
Diese helle und freundliche Wohnung befindet sich im 2. OG (ohne Lift) eines gepflegten Wohnhauses und bietet Ihnen 77 m² Wohnfläche.
Sie besteht aus einer kleinen Essküche mit Balkon in den Innenhof, die perfekt für das gemeinsame Kochen und Essen mit Freunden oder der Familie geeignet ist und zwei großzügigen Zimmern,
Badezimmer, mit Badewanne und Waschmaschinenanschluß. Ein separates WC sorgt für zusätzlichen Komfort.

Die Wohnung befindet sich sehr zentral in der Schützenhofgasse, wo Sie alles finden, was das Herz begehrt. Geschäfte, Cafés, Restaurants und Parks sind nur wenige Schritte entfernt. Eine perfekte Wahl für alle, die die Stadt und ihre Annehmlichkeiten genießen möchten, aber dennoch die Ruhe und Entspannung eines Wohngebiets schätzen.

Machen Sie diese Wohnung zu Ihrem Zuhause und genießen Sie die Annehmlichkeiten, die die Umgebung bietet. Wir freuen uns darauf, Sie bald willkommen zu heißen.

Für weitere Fragen und einen Besichtigungstermin stehe ich Ihnen gerne jederzeit unter 0664 / 1599195 zur
Verfügung.

Alle Angaben nach besten Wissen und Gewissen auf Basis der erhalten Informationen vom Eigentümer aber ohne Gewähr!

In diesem Fall sind wir nicht als Doppelmakler tätig.
Sie sind an weiteren Immobilien dieser Art interessiert? - Besuchen Sie uns auf www.poelzer.at und sehen Sie unser vollständiges Angebot!
Wohnfläche
ca. 77,00 m²
2 Zimmer
WC
1
Bad
1
Heizung
ZH, Fernwärme
Sonstiges: Balkon
Infos & Kosten
Objektgruppe
Mietwohnung
Objektnummer
804/01561
Adresse
A - 8020 Graz
 
 
 
 
Gesamtmiete
€ 1.040,96 inkl. MwSt.
 
 
Enthaltene MwSt.
€ 104,08
HMZ
€ 675,14 inkl. MwSt.
Betriebskosten
€ 193,34 inkl. MwSt.
 
 
Kaution
€ 2.880,00
Energieausweis
Heizwärmebedarf
67 kWh/m²a
Energieklasse
Ansprechpartner_in
Katharina Lehsl
Tel.: +436641599195
Anfrage
Anrede
Titel
Vorname
Nachname*
E-Mail*
Tel.*
Betreff:
Nachricht

Ihre Daten werden zum Zwecke der Zusendung von Immobilienangeboten gespeichert. Nähere Informationen siehe Datenschutzerklärung.
Kopie dieser Anfrage an mich senden
* Pflichtfelder
Lage
Das Objekt konnte
nicht geokodiert
werden.
Share on Facebook